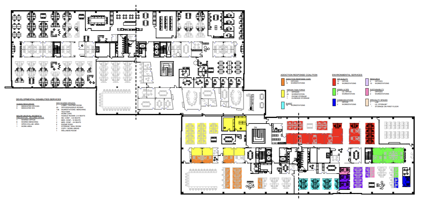
Current Project Underway!

Check back soon for updates on our move project with Hamilton County’s Jobs & Family Services, Veterans Services Commission, Environmental Services, Public Health, Addiction Response Coalition, & CLEAR departments to the new Hamilton County Central.